С | 43
| Adresse: | Carrer de Son Cotoneret, 43, Palma de Mallorca, Spain |
| Baubeginn: | 2024 |
| Bauende: | 2025 |
| Anzahl der Wohnungen: | 2 |
Two houses in the city center within walking distance to the port and the old town.
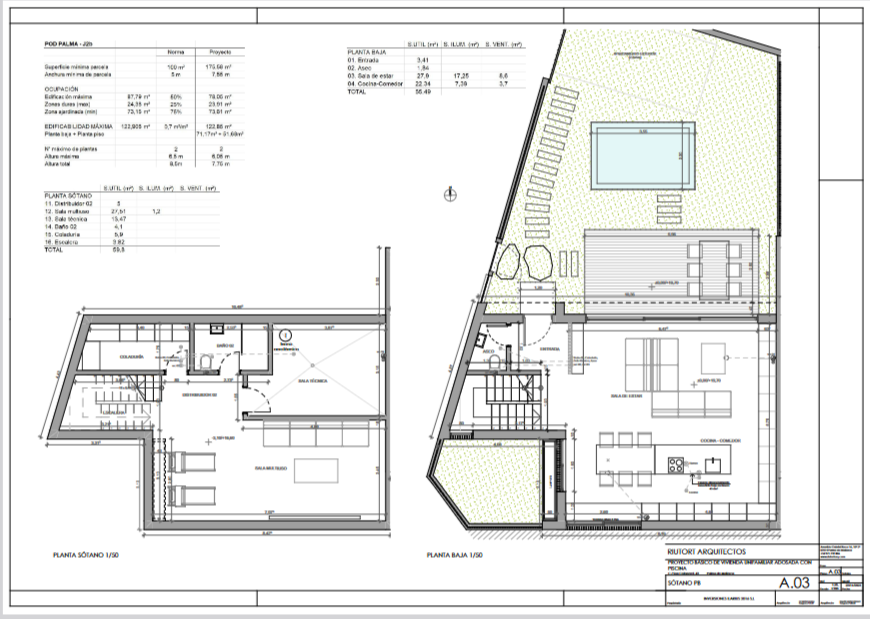
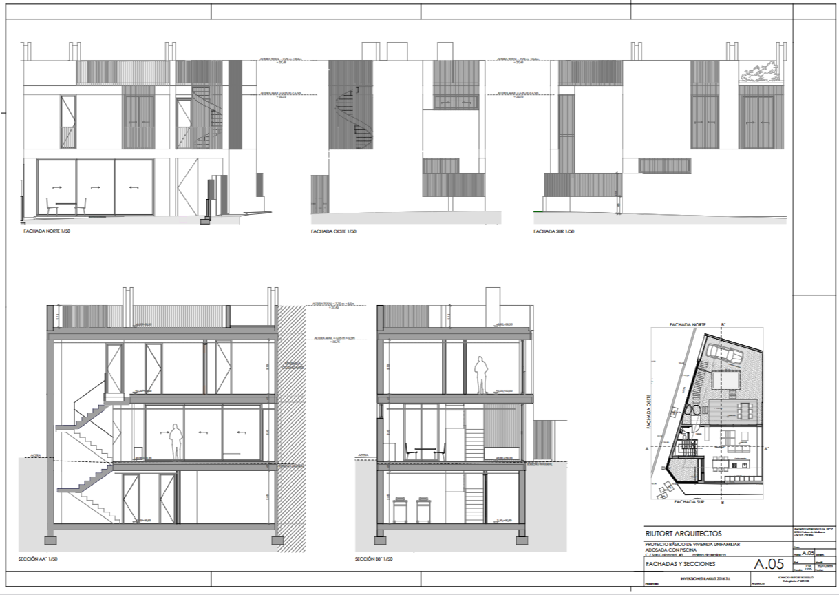
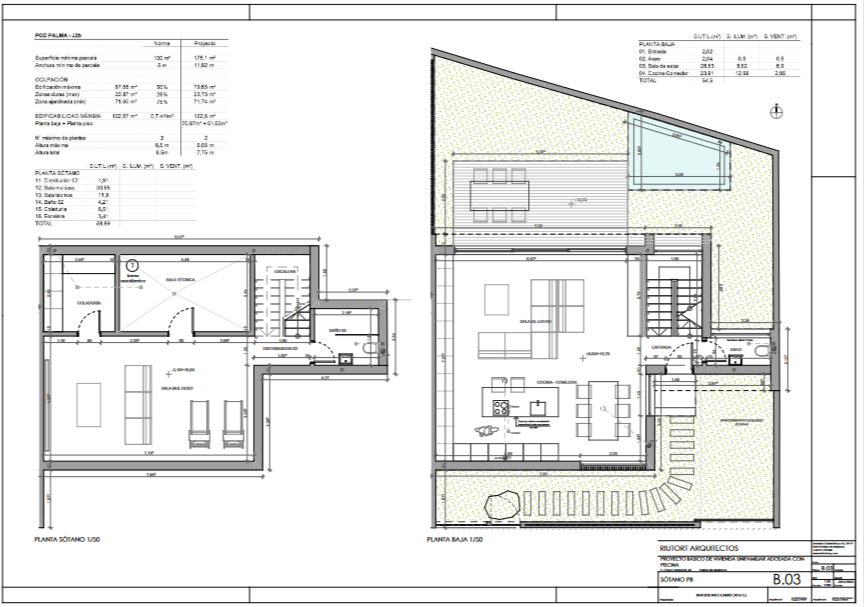
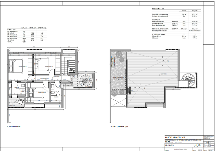
The useful area of the house is approximately 160 m2.
Terrace area approximately 50 m2
Open land area approximately 50 m2
Completion of construction is expected in 4 quarter of 2025.
1) Currently, the basic design has been completed and the documents have been submitted to the municipality to obtain a construction permit.
2) Permission has been received to demolish the old building.
Виллы рядом с Santa Catalina



Виллы с бассейном и садом распложена на улице Andrea Doria, в 5ти минутах ходьбы до Santa Catalina и набережной. В пешей доступности теннисный клуб Palma.
Па́льма-де-Мальо́рка является главным городом Балеарских островов, обладающий древней историей и уникальным средиземноморским микроклиматом. Температура воздуха с конца апреля по начало ноября 25-30C, воды около 22С-25С. В зимние месяцы температура не опускается ниже 10С.
Является крупным туристическим центром. Члены испанской королевской семьи проводят каникулы в Маривентском дворце, возле Пальмы. Город красив и богат на достопримечательности: старый город, Кафедральный собор, Церковь Св. Франциска, Королевский дворец, древние мельницы, музеи и галереи, к тому же в окресностях Пальмы отдыхают известные голливудские звезды, такие как ДиКаприо и др. Город насыщен ресторанами, уютными кафе, спортивными стадионами, велосипедными дорожками. Из-за своего морского происхождения, большое присутствие имеют и морские виды спорта и развлечений. Из местного порта вы можете отправиться в незабываемое морское путешествие на красивейшие острова Ибицу и Менорку.